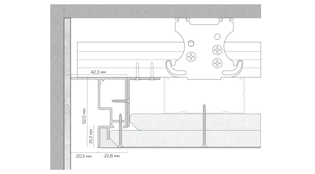
52 Система от FerGipps разработана монтажниками для монтажников!

Мы разработали профили высотой 52 мм для различных задач, чтобы максимально упростить монтаж! Собирая потолок по схеме П-112 от Кнауф, вы больше не ловите миллиметры, не думаете, как поставить тот или иной профиль — об этом уже подумали мы! Просто поджимаете наш профиль к верхнему поточному профилю каркаса, а далее монтируете второй профиль 60х27 и 2 листа гипсокартона по 12,5 мм, что в сумме и даёт 52 мм. Естественно, не нужна фрезеровка листов гипоскартона и зенковка отверстий в профиле. Это удобно и для малярных работ. В итоге с 52 системой вы экономите время и деньги, а получаете высочайшее качество.